Korporatsioon Sakala konvendikorterite esindusruume Tartus ja Tallinnas on võimalik rentida konverentside, seminaride või pidulike ürituste korraldamiseks. Tartus asub meie konvendikorter aadressil Veski 69, Tallinnas aadressil Roosikrantsi 3.
Veski 69 Tartus

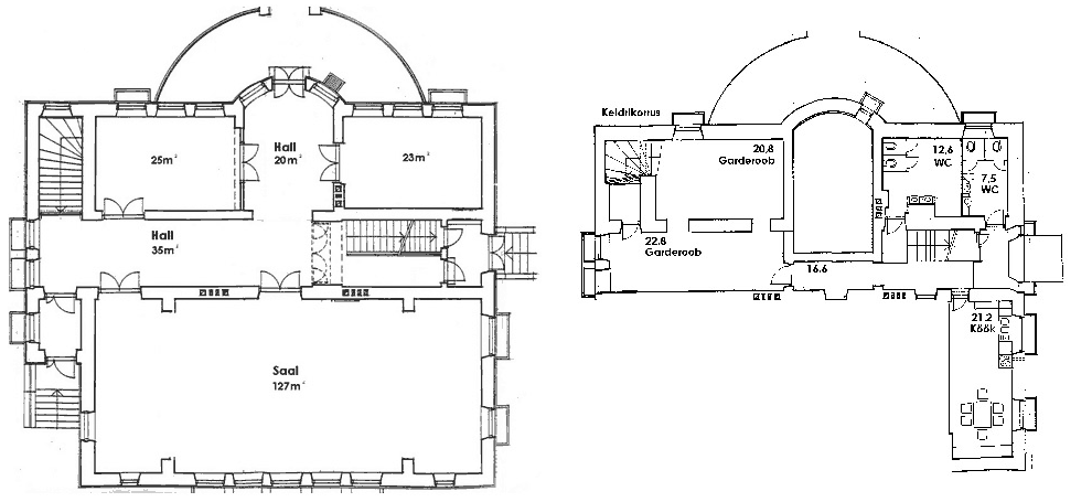
Veski 69 on 1911. aastal valminud, tuntud Soome arhitekti Armas Lindgren projekteeritud kolmekordne juugendstiilis kivimaja. Maja juurde kuulub suur aed. Rentimisele kuuluvad ruumid on esimese korruse saal ning hall ja keldrikorruse abiruumid. Kokkuleppel saab kasutada ka maja terrassi ja aeda.
Galerii
Roosikrantsi 3 Tallinnas

Roosikrantsi 3 on 1878. aastal arhitekt R. Knüpfferi projekti järgi valminud kolmekordne puitmaja. Väljarentimisele kuuluvad ruumid asuvad hoone teisel korrusel. Rentimisele kuuluvad 3 suuremat esindusruumi ning abiruumid.
